実 例 集
Yシティーホール新築工事
平成25年2月竣工
主要用途:集会場
構造:鉄骨造・平屋建
延べ床面積:894.40㎡
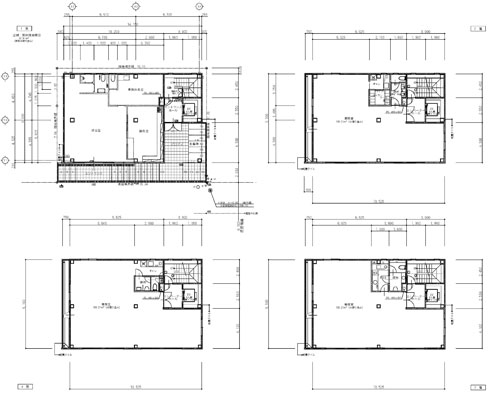
K店舗新築工事
平成24年10月竣工
主要用途:店舗
構造:鉄骨造・2階建
延べ床面積:807.20㎡
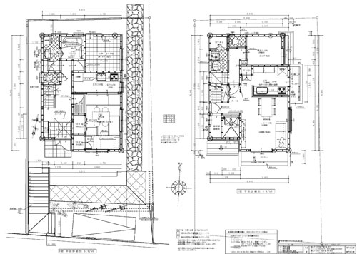
M邸新築工事
平成24年10月竣工
主要用途:専用住宅
構造:鉄骨造・2階建
延べ床面積:130.44㎡
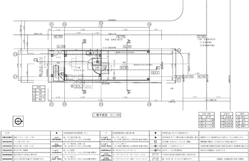
K邸新築工事
平成24年10月竣工
主要用途:専用住宅
構造:木造・3階建
延べ床面積:141.38㎡
Kビル新築工事
平成24年9月竣工
主要用途:共同住宅
構造:鉄骨造5階建
延べ床面積:544.52㎡
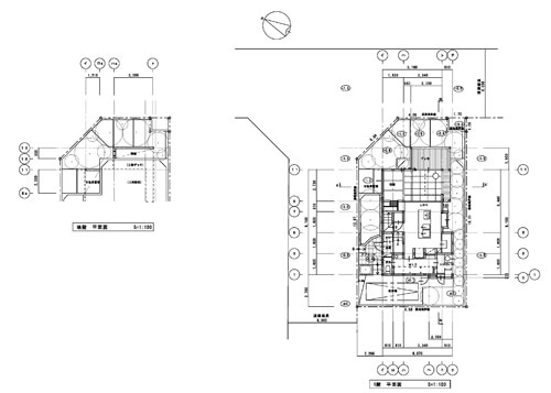
U邸新築工事
平成24年8月竣工
主要用途:専用住宅
構造:木造・2階建
延べ床面積:105.16㎡
Information
瀧川建築設計室:〒550-0005 大阪市西区西本町1-13-38西本町新興産ビル815号 TEL06-6534-4578・FAX06-6534-4585
一級建築士事務所登録 大阪府知事登録(ハ)第20127号 一級建築士・大臣登録第258330号
構造設計一級建築士大臣登録第8460号
業務内容:建築物の意匠設計業務から構造設計・調査・耐震診断・耐震改修工作物の構造検討・確認申請業務のことなら当事務所にお任せください。
対応地域:関西近畿圏・大阪・兵庫・神戸・京都・奈良・和歌山・滋賀・名古屋・関東:東京・神奈川・横浜・埼玉・千葉・群馬・他の地域も対応可能です。お気軽にお問い合わせください。







